연수동
전통 한옥의 품격과 현대적 공간이
어우러진 연수동의 객실은
프로그램 및 행사 후 휴식에 최적화되어 있습니다.
특히 연수동에서 바라보는 중도타워의 전망은
경주의 풍경과 절묘하게 어우러져,
마치 신라시대로 거슬러 올라간 듯한
감동적인 장관을 선사합니다.
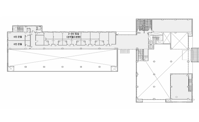
4층 | 객실(한옥/스위트). 대청 |
3층 | 객실(양실), 식당, 강당, 소회의실 |
2층 | 객실(양실,한실), 소회의실 |
1층 | 카페테리아, 로비라운지,대연회장,프론트 |
B1층 | 주차장 |
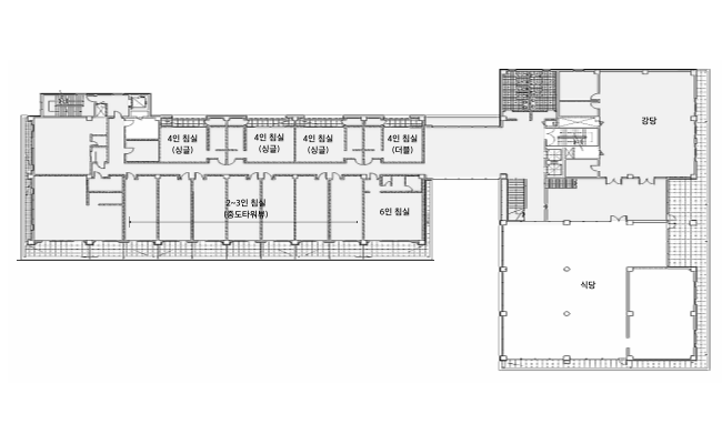
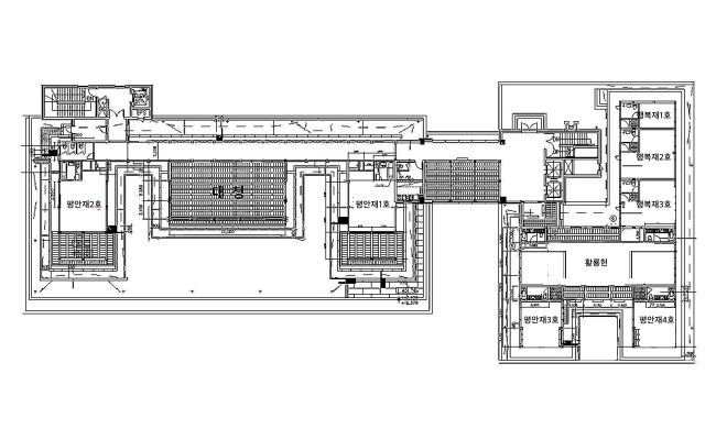
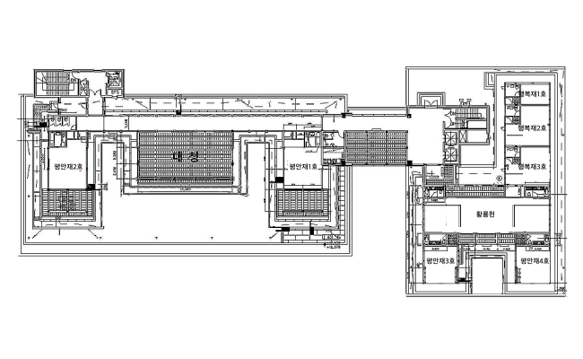
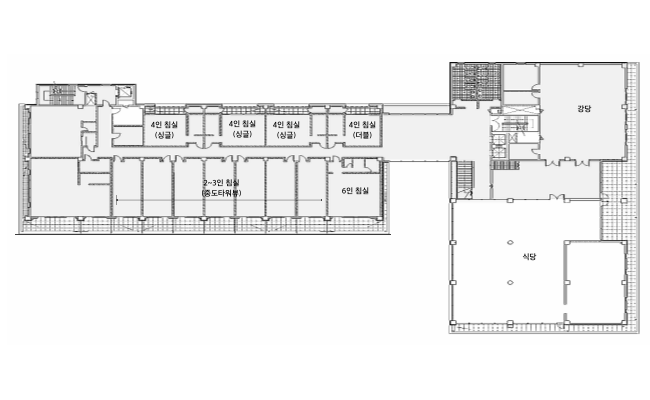
연수동 4층 객실 안내 도면
전통 한옥의 품격과 현대적 공간이 어우러진 연수동의 방사는
프로그램 및 행사 후 휴식에 최적화되어 있습니다.
특히 연수동에서 바라보는 중도타워의 전망은 경주의 풍경과 절묘하게 어우러져,
마치 신라시대로 거슬러 올라간 듯한 감동적인 장관을 선사합니다.
연수동 3층 객실 안내 도면
연수동 2층 객실 안내 도면
아름다운 한옥, 단독테라스의 중도타워 뷰 방사
[한옥/스위트]평안재 1호아름다운 한옥, 단독테라스의 중도타워 뷰 방사
아름다운 한옥, 단독테라스의 중도타워 뷰 방사
[한옥/스위트]평안재2호아름다운 한옥, 단독테라스의 중도타워 뷰 방사
아름다운 한옥, 정원 8인의 스위트 방사
[한옥/스위트]황룡헌아름다운 한옥, 정원 8인의 스위트 방사
한옥과 모던한 원목가구가 조화로운 중도타워뷰 방사
[한옥/스위트]평안재3호/4호한옥과 모던한 원목가구가 조화로운 중도타워뷰 방사
따뜻하고 쾌적한 한옥 방사
[한옥/스위트]행복재 2호/3호따뜻하고 쾌적한 한옥 방사
중도타워의 경관과 넓은 공간을 자랑하는 6인 침실 방사입니다.
6인 침실(중도타워뷰)중도타워의 경관과 넓은 공간을 자랑하는 6인 침실 방사입니다.
중도타워의 경관을 가장 아름답게 볼수 있는 모던한 방사
2~3인 침실(중도타워뷰)중도타워의 경관을 가장 아름답게 볼수 있는 모던한 방사
조용하고 쾌적한 3인 침실 방사입니다. 뒷편의 녹지공간을 마주하고 있습니다.
2~3인 침실(경주월드방향)조용하고 쾌적한 3인 침실 방사입니다. 뒷편의 녹지공간을 마주하고 있습니다.
더블 베드 2개로 구성되어 있어 가족 고객에게 적합한 효율적인 공간입니다.
4인 침실(더블)더블 베드 2개로 구성되어 있어 가족 고객에게 적합한 효율적인 공간입니다.
싱글 사이즈 베드 4개로 구성된 공간으로 휴식이 필요한 비지니스 고객을 위한 공간입니다.
4인 침실(싱글)싱글 사이즈 베드 4개로 구성된 공간으로 휴식이 필요한 비지니스 고객을 위한 공간입니다.
넓고 쾌적한 다인 가족을 위한 방사입니다.
6인 온돌넓고 쾌적한 다인 가족을 위한 방사입니다.
따뜻하고 부드러운 우드 인테리어가 돋보이는 방사로, 주변에 높은 건물이 없어 탁 트인 전망을 자랑합니다.
2~3인 온돌따뜻하고 부드러운 우드 인테리어가 돋보이는 방사로, 주변에 높은 건물이 없어 탁 트인 전망을 자랑합니다.
탁 트인 창으로 들어오는 경주의 자연 풍경은 참여자들에게 깊은 인상을 남기며, 황룡원의 전통 한옥동과 어우러져 특별한 경험을 선사합니다.
중도타워 4인 온돌탁 트인 창으로 들어오는 경주의 자연 풍경은 참여자들에게 깊은 인상을 남기며, 황룡원의 전통 한옥동과 어우러져 특별한 경험을 선사합니다.
탁 트인 창으로 들어오는 경주의 자연 풍경은 참여자들에게 깊은 인상을 남기며, 황룡원의 전통 한옥동과 어우러져 특별한 경험을 선사합니다.
중도타워 5인 온돌탁 트인 창으로 들어오는 경주의 자연 풍경은 참여자들에게 깊은 인상을 남기며, 황룡원의 전통 한옥동과 어우러져 특별한 경험을 선사합니다.
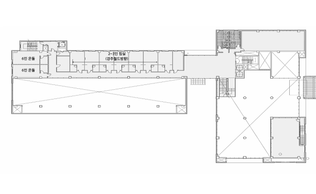
4층 | 방사(한옥/스위트) , 대청 |
3층 | 방사(양실), 식당, 강당, 소회의실 |
2층 | 방사(양실,한실), 소회의실 |
1층 | 카페테피아, 로비라운지, 대연회장, 프론트 |
B1층 | 주차장 |
연수동 4층 방사 안내 도면
연수동 3층 방사 안내 도면
연수동 2층 방사 안내 도면
아름다운 한옥, 단독테라스의 중도타워 뷰 방사
[한옥/스위트]평안재 1호아름다운 한옥, 단독테라스의 중도타워 뷰 방사
아름다운 한옥, 단독테라스의 중도타워 뷰 방사
[한옥/스위트]평안재2호아름다운 한옥, 단독테라스의 중도타워 뷰 방사
아름다운 한옥, 정원 8인의 스위트 방사
[한옥/스위트]황룡헌아름다운 한옥, 정원 8인의 스위트 방사
한옥과 모던한 원목가구가 조화로운 중도타워뷰 방사
[한옥/스위트]평안재3호/4호한옥과 모던한 원목가구가 조화로운 중도타워뷰 방사
따뜻하고 쾌적한 한옥 방사
[한옥/스위트]행복재 2호/3호따뜻하고 쾌적한 한옥 방사
중도타워의 경관과 넓은 공간을 자랑하는 6인 침실 방사입니다.
6인 침실(중도타워뷰)중도타워의 경관과 넓은 공간을 자랑하는 6인 침실 방사입니다.
중도타워의 경관을 가장 아름답게 볼수 있는 모던한 방사
2~3인 침실(중도타워뷰)중도타워의 경관을 가장 아름답게 볼수 있는 모던한 방사
조용하고 쾌적한 3인 침실 방사입니다. 뒷편의 녹지공간을 마주하고 있습니다.
2~3인 침실(경주월드방향)조용하고 쾌적한 3인 침실 방사입니다. 뒷편의 녹지공간을 마주하고 있습니다.
더블 베드 2개로 구성되어 있어 가족 고객에게 적합한 효율적인 공간입니다.
4인 침실(더블)더블 베드 2개로 구성되어 있어 가족 고객에게 적합한 효율적인 공간입니다.
싱글 사이즈 베드 4개로 구성된 공간으로 휴식이 필요한 비지니스 고객을 위한 공간입니다.
4인 침실(싱글)싱글 사이즈 베드 4개로 구성된 공간으로 휴식이 필요한 비지니스 고객을 위한 공간입니다.
넓고 쾌적한 다인 가족을 위한 방사입니다.
6인 온돌넓고 쾌적한 다인 가족을 위한 방사입니다.
따뜻하고 부드러운 우드 인테리어가 돋보이는 방사로, 주변에 높은 건물이 없어 탁 트인 전망을 자랑합니다.
2~3인 온돌따뜻하고 부드러운 우드 인테리어가 돋보이는 방사로, 주변에 높은 건물이 없어 탁 트인 전망을 자랑합니다.
탁 트인 창으로 들어오는 경주의 자연 풍경은 참여자들에게 깊은 인상을 남기며, 황룡원의 전통 한옥동과 어우러져 특별한 경험을 선사합니다.
중도타워 4인 온돌탁 트인 창으로 들어오는 경주의 자연 풍경은 참여자들에게 깊은 인상을 남기며, 황룡원의 전통 한옥동과 어우러져 특별한 경험을 선사합니다.
탁 트인 창으로 들어오는 경주의 자연 풍경은 참여자들에게 깊은 인상을 남기며, 황룡원의 전통 한옥동과 어우러져 특별한 경험을 선사합니다.
중도타워 5인 온돌탁 트인 창으로 들어오는 경주의 자연 풍경은 참여자들에게 깊은 인상을 남기며, 황룡원의 전통 한옥동과 어우러져 특별한 경험을 선사합니다.
About
황룡원(皇龍院)은 역사속 유물인 신라시대 황룡사 구층탑 양식의 중도(中道)탑을 중심으로 정신 문화, 의식교육 공간으로 사용되는 연수원이며, 우리 선조들의 뛰어난 예술성과 건축기술을 볼 수 있고, 고대 건축물을 현대의 과학기술과 건축 공법으로 재해석 하여 완공하였으며, 경주 보문관광단지의 새로운 LANDMARK로 자리하고 있습니다.
Location
38116 경북 경주시 엑스포로 40
Reservation (상담시간 10:00~17:00)
Tel 070-4187-0500